+18
Arnas (69400)

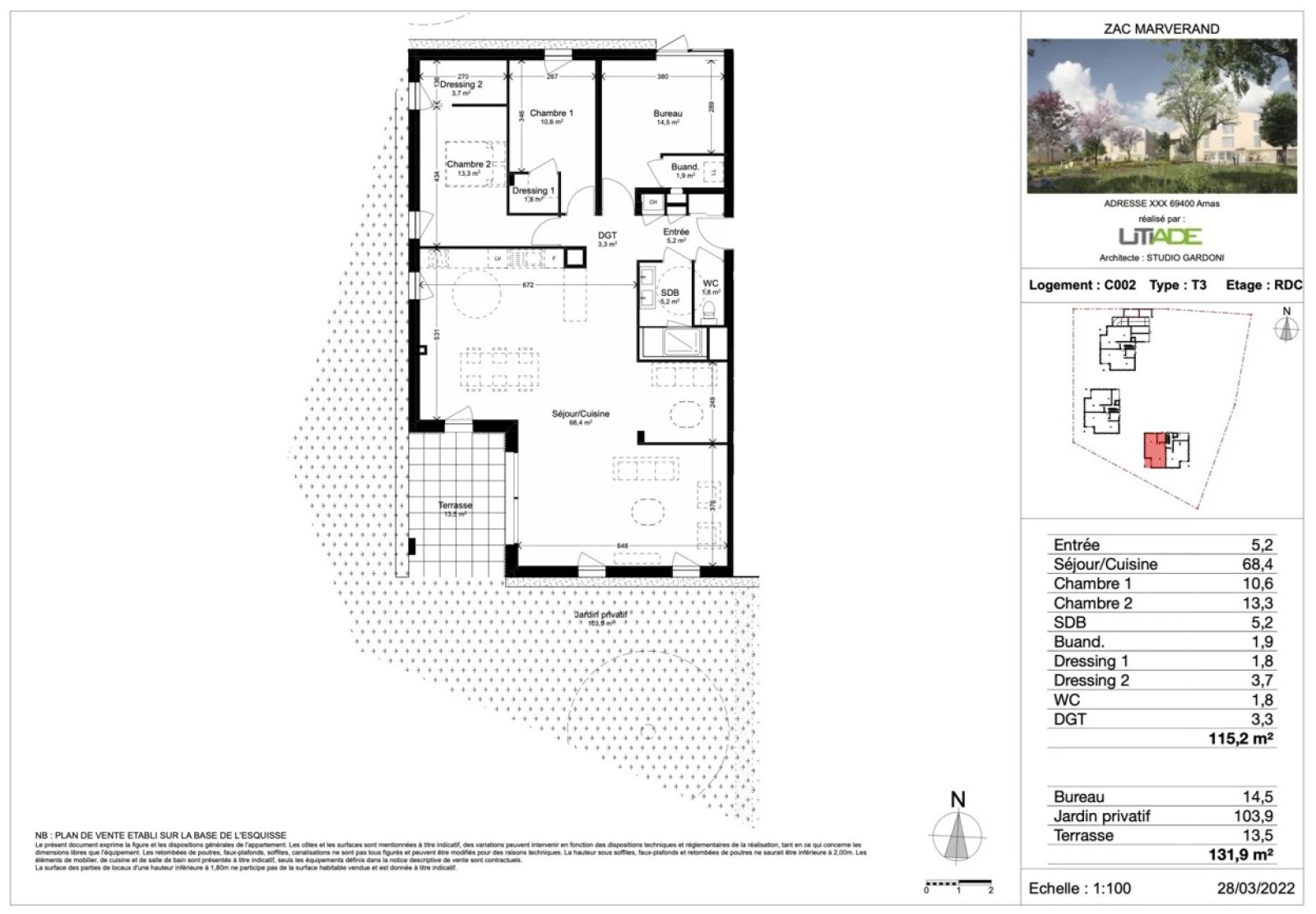
Appartement 3 pièce(s) 2 chambre(s) 115.2 m²

1
99.7 m²
Ascenseur
424 000 €
Réf 264-C002

Découvrez ce superbe appartement T3 de 115m², idéalement situé dans une résidence neuve et sécurisée à Arnas. Profitez d’un cadre de vie privilégié, entre confort et nature.

Parc verdoyant avec jardin potager
Lumineux et au calme
Prestations de qualité et beaux volumes
Chauffage individuel au gaz
Garage et parking en supplément

Ses particularités ?
Un parc de 5000 m² en cours de création
Seulement 18 logements répartis sur 3 bâtiments
Des appartements confortables pensés comme des maisons
Quelques lots encore disponibles : T3 et T4 et T5

Un bien rare alliant espace, modernité et sérénité. Contactez-nous dès maintenant pour une visite !


Agence CUBIC IMMOBILIER, 180 Boulevard Gambetta (Angle rue Boiron), 69400 Villefranche s/Saône

Clémentine COURRIER MIRALLES Agent Commercial EI (R.S.A.C. 932 833 783 - Lyon).


Les informations sur les risques auxquels ce bien est exposé sont disponibles sur le site Géorisques

Bilan énergétique

Diagnostics énergetiques
A propos de ce bien Caractéristiques de ce bien
  • Surface 115,20 m²
  • carrez 115,20 m²
  • terrain 99,70 m²
  • séjour 68,40 m²
  • 2 chambre(s)
  • 1 salle(s) d'eau
  • construit en 2024
  • cuisine américaine
  • Chauffage individuel : radiateur (gaz)
  • exposition Ouest
  • 1 niveau(x)
  • 2 étage(s)
  • ascenseur
  • vue Parc
  • cave
  • terrasse
  • arboré
  • visiophone
  • interphone
  • accès handicapé

Composition

Composition de ce bien

Rez-de-chaussée

  • entr?e 5.2 m²
  • salon/sejour 68.4 m²
  • chambre 10.6 m²
  • chambre 13.3 m²
  • salle d'eau 5.2 m²
  • buanderie 1.9 m²
  • dressing 1.8 m²
  • dressing 3.7 m²
  • WC 1.8 m²
  • Dégagement 3.3 m²

Info copro

Copropriété
  • Copropriété Oui
  • Lot n° C002
  • Nombre de lots 86
  • Plan de sauvegarde Non
  • Statut du syndic Pas de procédure en cours

Financier

Informations financières
Prix de vente 424 000 € Les honoraires d'agence seront intégralement à la charge du vendeur

Simulation

Calcul des mensualités
* Champs obligatoires
Cubic Immobilier Agence